Евродвушка в Минск Мире: Ваш идеальный уголок с потрясающими видами!

Минск, улица Леонида Щемелёва, 14

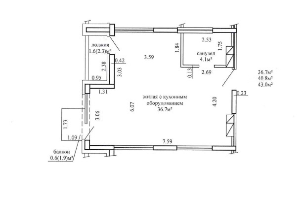
40,8 м²

18 / 19 этаж

Аэродромная

Характеристики объекта

Количество комнат

1

Раздельных комнат

1

Площадь общая

40,8 м²

Площадь жилая

36,7 м²

Площадь кухни

- м²

Год постройки

2025

Этаж

18/19

Ремонт

Без отделки

Тип стен

Каркасно-блочный

Балкон

Балкон

Санузел

Совмещенный

Номер договора

62/1 от 17.10.2025г

Описание объекта

Представляем вашему вниманию уютную евродвушку в комплексе Минск Мир! Квартира расположена на 18-м этаже 19-этажного дома «Мехико-Сити» в квартале «Южная Америка», всего в 7 минутах от метро «Аэродромная».

С этого этажа открывается великолепный вид на окрестности, а окна выходят во двор, что обеспечивает тишину и спокойствие. Квартира не угловая, тёплая, с застеклённой лоджией и открытым балконом, идеально подходящими для отдыха.

Свободная планировка позволяет вам создать отдельную спальню и объединённую кухню-гостиную. В наличии два стояка с водой и канализацией, что предоставляет множество вариантов для размещения кухни.

Панорамные окна наполняют пространство светом и воздухом, создавая атмосферу уюта и комфорта. Вместо привычного подъезда вас встречает стильное дизайнерское лобби, что добавляет изысканности вашему новому дому.

Комплекс окружён всей необходимой инфраструктурой. В ближайшее время здесь откроется двухэтажный торговый центр с продовольственным магазином на первом этаже и бутиками на втором, а также детский сад на 270 мест. Через дорогу расположена школа, а в пяти минутах ходьбы находится торгово-развлекательный центр Avia Mall. В районе также строится Международный финансовый центр.

Развитая сеть остановок наземного общественного транспорта обеспечит вам быстрый доступ в любой уголок города.

Это лучшее соотношение цена/качество! Не упустите возможность стать владельцем этой замечательной квартиры — звоните прямо сейчас!

Местоположение

Населенный пункт

Минск

Улица

улица Леонида Щемелёва

Номер дома

14

Район города

Октябрьский

Метро

Аэродромная

Координаты

53.8627930584029,27.55685330787071

238 358р.

≈ 79 900$

5 960р. м²

≈ 1 998$ м²

Ольга +375292547197

Оставить заявку