Ваша солнечная и светлая квартира мечты в ЖК Vogue!

Минск, улица Макаёнка, 12Б

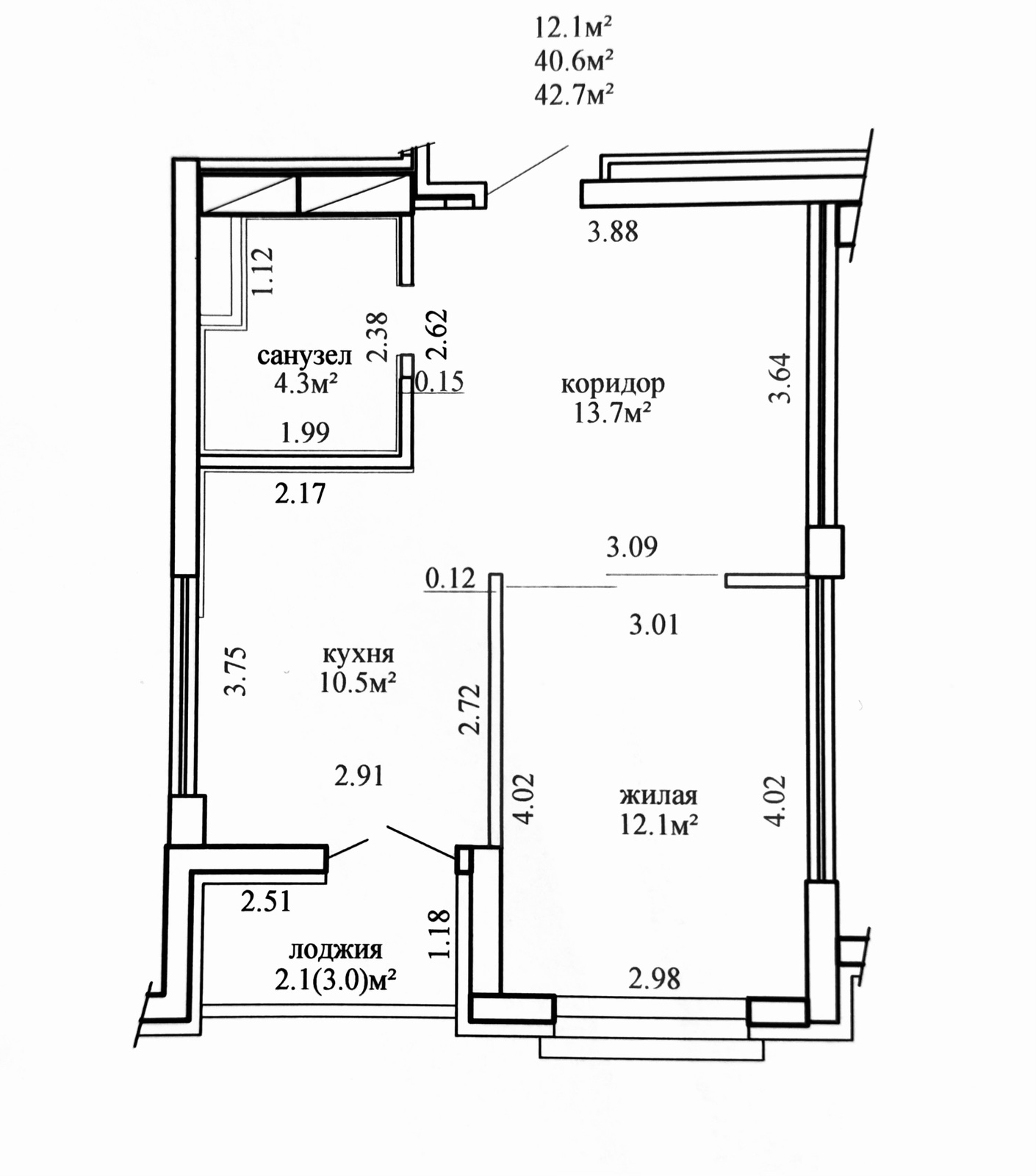
42,7 м²

19 / 21 этаж

Парк Челюскинцев

Характеристики объекта

Количество комнат

1

Раздельных комнат

1

Площадь общая

42,7 м²

Площадь жилая

12,1 м²

Площадь кухни

10,5 м²

Год постройки

2003

Этаж

19/21

Ремонт

Евро

Тип стен

Каркасно-блочный

Балкон

Лоджия

Санузел

Совмещенный

Номер договора

78/1 от 16.12.2025

Описание объекта

Ваша солнечная и светлая квартира мечты в ЖК "Vogue"!

Квартира расположена в престижном жилом комплексе "Vogue", который предлагает не только современное жилье, но и уникальную локацию.

Идеальное расположение:

ЖК "Vogue" находится в непосредственной близости от двух станций метро – "Московская" и "Парк Челюскинцев". Это обеспечивает вам превосходную транспортную доступность и возможность быстро добраться в любую точку города.

 

Жизнь в окружении природы:

 Всего в нескольких шагах от вашего дома раскинулся великолепный Парк Челюскинцев, а также  Ботанический сад. Представьте себе утренние прогулки среди зелени, свежий воздух и возможность наслаждаться красотой природы, не выезжая из города!

 

Комфорт и уют в каждой детали:Уютное лобби.

 Продуманный формат евро-2: Идеальное решение для тех, кто ценит функциональность и комфорт.

 Полностью укомплектована для жизни: Квартира готова к заселению и оснащена всем необходимым. Остается:

  • Стиральная машина
  • Холодильник
  • Современная кухня

Встроенные шкафы для хранения ваших вещей

Бойлер для бесперебойного горячего водоснабжения. В квартире уже выполнена разводка для установки кондиционера, что позволит вам создать идеальный микроклимат в любое время года.

Эта квартира – идеальный выбор для тех, кто ищет не просто жилье, а место, где можно по-настоящему жить, наслаждаясь комфортом, красотой природы и удобством городской инфраструктуры.

Чистая продажа.

Местоположение

Населенный пункт

Минск

Улица

улица Макаёнка

Номер дома

12Б

Район города

Первомайский

Метро

Парк Челюскинцев

Координаты

53.92280790252671,27.62553908333377

357 246р.

≈ 122 900$

8 505р. м²

≈ 2 926$ м²

Ольга +375333871213

Оставить заявку